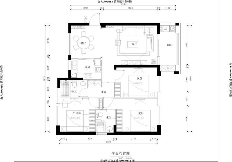
入户餐厅和厨房如何布局,儿童房放北面还是南面

12-22发表
福建 福州
来自手机端
100
楼主悬赏100积分
1、入户就是餐厅,没有玄关,餐边柜和鞋柜怎么摆放比较好?
2、进门看到厨房,厨房门该做推拉门还是单门?
3、儿童房该放北面还是南面,如何布局,希望放1.5米上下床,书桌位置预留大些
4、主卫面积有点小,可以摆放下三件套吗?改推拉门如何?
5、主卧的门要怎么开
请群里的设计师帮忙出谋划策!谢谢
酷大师向您推荐

升级为优质设计师1对1服务

资深室内设计师在线提供1对1户型设计服务,酷家乐认证品质有保障。全程为您解答空间布局、施工工艺、建材采购、软装搭配等问题。

去找设计师

评论(2)

  • 2017-12-22 沙发
    把帖子发到户改那边会更合适
  • 2017-12-22 板凳

    您好,如果您的户改求助未收到满意的方案

    建议您移至『户型改造』版块发帖,在该版块您更易得到满意的方案~感谢您的谅解~

     

发表评论

不如来和大家一起讨论吧?

发布
发表帖子
本帖来自
装修答疑

共39268个帖子

帮助中心

    图片标签

    x

    自定义标签

    标签历史:

    图片描述

    操作成功 操作失败

    不通过 更新描述 通 过 推 荐